Proyecto Ágora — Un espacio para el encuentro entre cuerpo y mente (Puerto Real, Cádiz)
Ágora nace en nuestro estudio de interiorismo con una intención clara: convertirse en el corazón de una comunidad. Como en la Grecia clásica, queríamos un lugar donde la vida suceda: un espacio vivo, sereno y funcional que conecte a las personas con su bienestar.


El punto de partida: un lienzo en bruto, lleno de posibilidades
El local era prácticamente diáfano, pero en mal estado: dos baños muy deteriorados, pavimento roto con zonas donde el suelo había desaparecido y dejaba la tierra al descubierto. El conjunto transmitía abandono y frialdad.
Aun así, ese carácter desnudo nos habló: potencial. Vimos un lienzo en blanco esperando convertirse en un lugar con propósito.


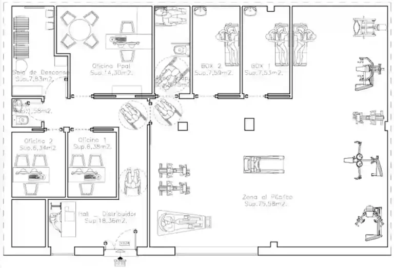
El reto: 150 m², dos columnas y muchas funciones que encajar
El programa era ambicioso: una sala principal amplia para ejercicio, dos oficinas, box individuales para tratamientos y un aseo adaptado cumpliendo normativa.
La clave fue distribuir con precisión y dar jerarquía a los usos.
Las dos columnas centrales marcaron el ritmo del proyecto y nos obligaron a diseñar flujos limpios y transiciones lógicas sin renunciar a la amplitud.
El concepto: un refugio contemporáneo de calma activa
Buscamos un espacio donde la estética cuide de la funcionalidad. Apostamos por una estética minimalista, elegante y serena:
Tonos beige para calma y equilibrio.
Nogal para calidez y sentido táctil.
Detalles en negro para carácter y elegancia.
Pavimento de gran formato para continuidad y sensación de amplitud.
La luz es parte de la experiencia: las LED integradas en los grandes espejos envuelven sin deslumbrar y generan intimidad, favoreciendo la reconexión del usuario consigo mismo.


Nuestro proceso en 4 movimientos
Estrategia y zonificación
Definimos ejes de circulación, jerarquizamos áreas y convertimos las columnas en puntos de orden compositivo, no en obstáculos.Materialidad y coherencia
Paleta beige + nogal + negro; superficies continuas, pocos materiales y encuentros cuidados para minimizar ruido visual.Iluminación como guía
Iluminación general uniforme + acento en espejos y áreas de trabajo para acompañar al usuario y reforzar la lectura del espacio.Ejecución y cumplimiento
Rehicimos instalaciones, saneamos forjados y pavimentos y resolvimos el aseo adaptado según normativa de accesibilidad, integrándolo en el conjunto.



El resultado: orden, amplitud y bienestar integral
La sala principal se amplió y reorganizó para un movimiento cómodo y sin interferencias.
Oficinas y box se integran con privacidad real y lógica funcional.
Aseo adaptado conforme a normativa, con un lenguaje material coherente con el conjunto.
Las columnas pasan de limitación a hitos que articulan la planta.
Iluminación y materiales potencian amplitud, intimidad y confort, sin perder limpieza visual.
En conjunto, el local pasó de descuidado y poco funcional a un entorno acogedor, ordenado y elegante, pensado para el bienestar del cuerpo y la mente.






Lo que nos reafirma este proyecto
Ágora resume nuestra forma de trabajar: funcionalidad clara, estética atemporal y ejecución rigurosa. Diseñamos para que la gente viva mejor y se sienta acogida en los espacios, no solo para que se vean bien.
¿Diseñamos tu espacio de bienestar?
¿Quieres transformar tu clínica… tu oficina… tu negocio.. en un lugar que cuide de las personas y funcione de verdad?
Agenda una asesoría gratuita y te guiaremos en el planteamiento y la ejecución de tu proyecto.
Pide presupuesto si ya tienes claro o estás casi seguro/a de lo que vas a crear.
